St James’ Square

Location: Southbourne, Bournemouth

Client: Private

Type: Residential, New build

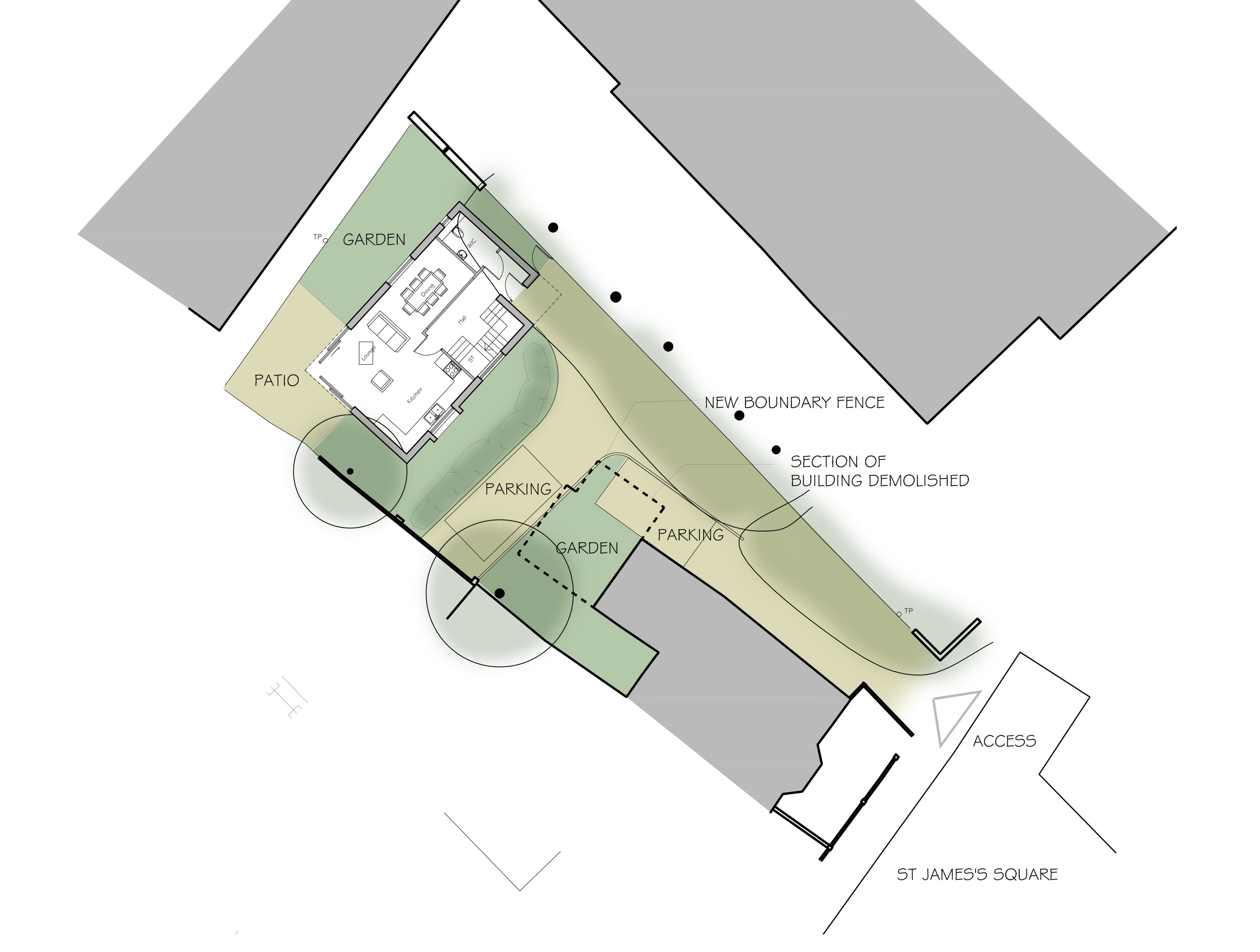
Description: This end of terrace plot located in Bournemouth has rear development potential in the rear garden. LMA were appointed to produce a design that was sensitive yet provided adequate accommodation for family living. The site is tight with a number of constraints, the challenge was to produce a design that dealt with these constraints yet provided a comfortable living space which has lots of natural daylight flooding into the building.

A shared access with the donor plot enables the proposed plot severance to the rear to provide sufficient parking and turning for vehicles with enough garden space being shared with each plot.

Previous Project   •   Next Project

Back to Portfolio