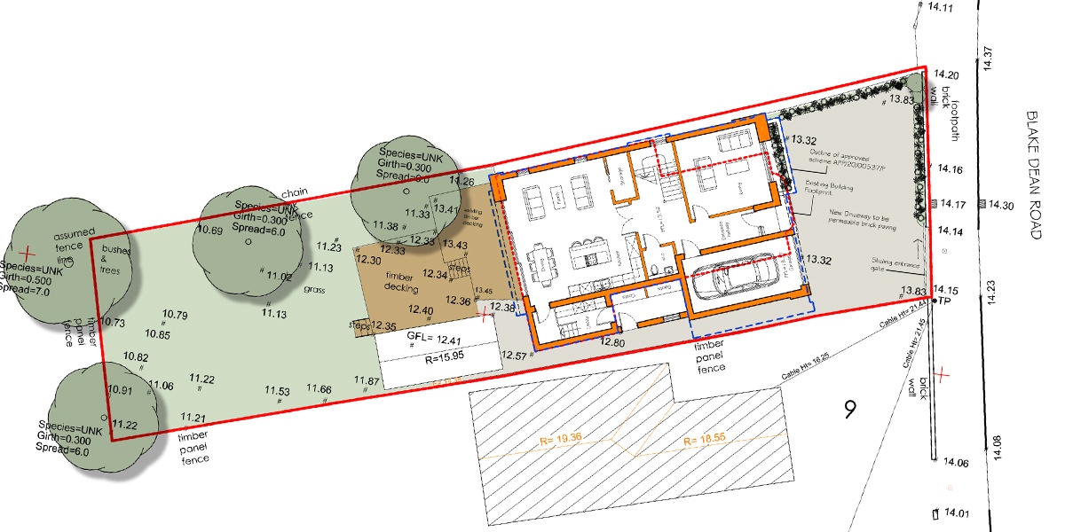
Blakedene Road

Location: Lilliput, Poole

Client: Private

Type: Residential, New Build

Description: Planning permission has been granted from Poole Council for a substantial modern dwelling in Lilliput, Poole. The new dwelling replaces a dormer bungalow on the plot. The house features an spacious open plan living, kitchen and dining fronting onto the  garden. The house maximizes the use of the top floor with a contemporary flat roof and two bedrooms with terraces that look out to Poole Harbour and Sandbanks.

Previous Project   •   Next Project

Back to Portfolio