Above Bar Street

Location: Southampton City Centre

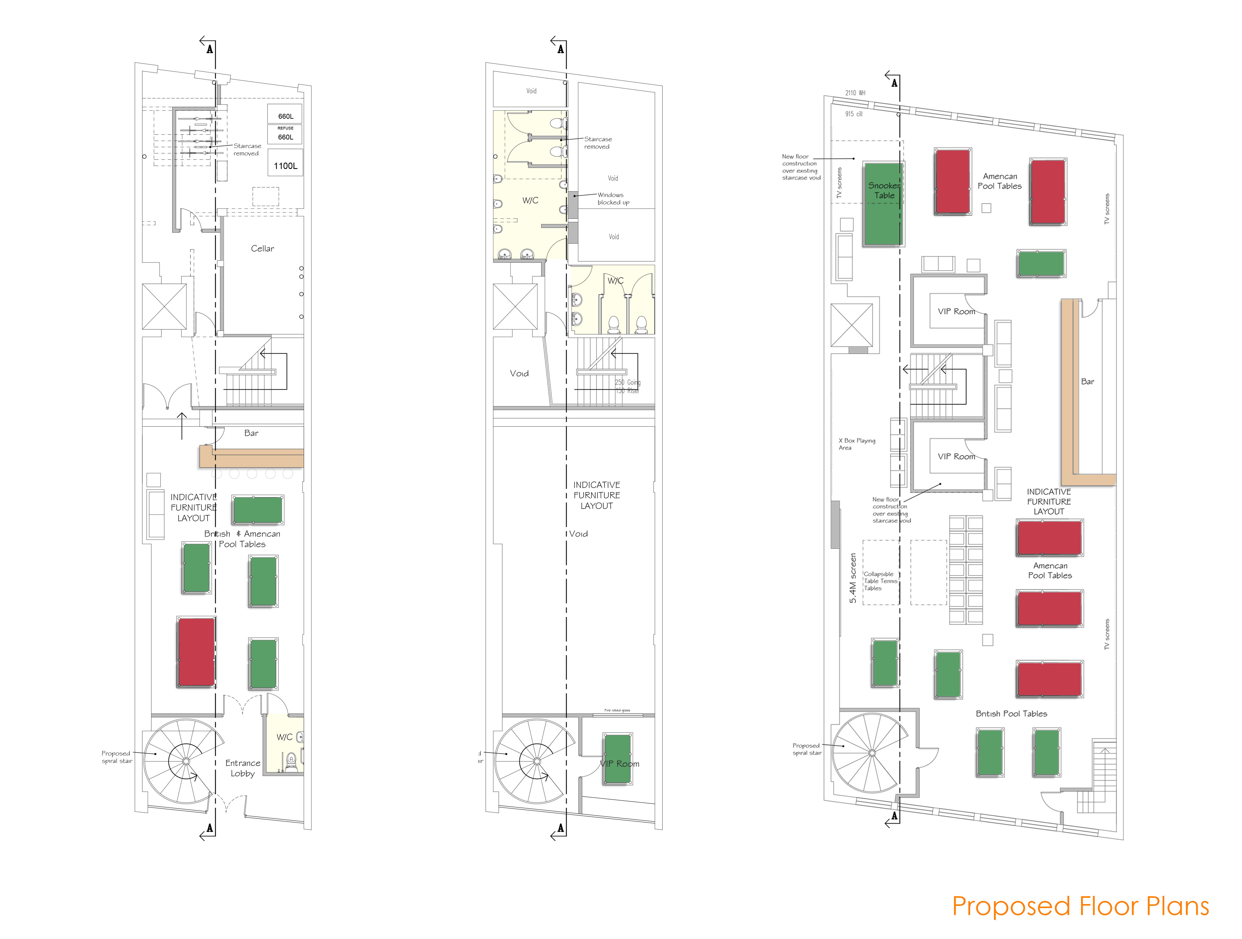
Client: Sharkeys

Type: Commercial

Description: LMA were appointed to provide internal designs for specific functional areas within the building, revised floor layouts to provide efficient space planning and designs for a potential pop up structure on the roof. The proposed change of use to a sports bar drinking establishment with multiple activities such as, pool, darts, table tennis and function rooms will convert this abandoned building into a thriving hub of activity.

A re-designed front entrance and new signage will provide improved street frontage along this commercial sector of the High Street.

In Planning

 

Previous Project   •   Next Project

Back to Portfolio